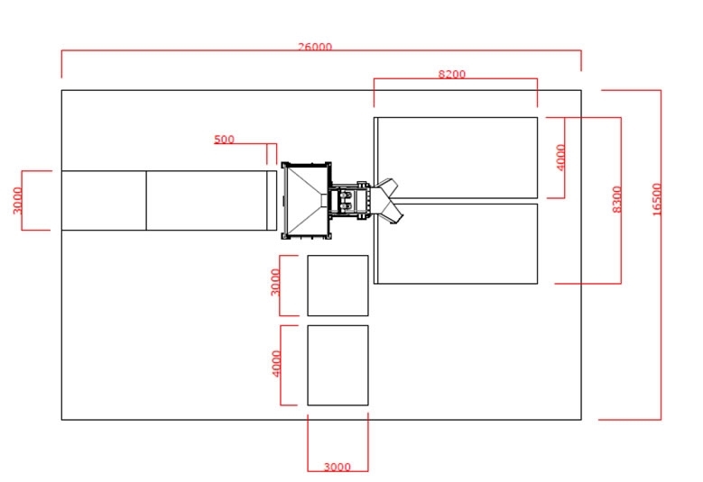
Concrete Recycling Unit

Dimensions

Concrete Recycling Unit
Features Value
Capacity 30м³/s
Washing Bunker 35.000х2150мм
Motor power 2х2.кW
Casting Height 2.000mm
Number of Materials Won 3
Material Types Earned Cement Water, Sand between 500 microns and 5 mm, Gravel 5 mm and above
Recycling Pump Power 7.5кW
Recycling Pump Capacity 30м³/час
Mixing Power 5.5кW
Mixing Speed 52

We use cookies to improve your user experience in accordance with KVKK. By visiting our site, you accept our cookie and privacy policy..

ADMIT IT